Схема котельной частного дома
Схема котельной № 1
Малые дачные и гостевые дома (60-150 м²).

Эта схема ориентирована на небольшие дома, где важна простота и экономичность.
- Источник тепла: Настенный электрический или газовый котел. Выбор зависит от доступности газа и ваших приоритетов по стоимости топлива. Электричество проще в установке, но газ часто дешевле в эксплуатации.
- Нагрев воды: Бойлер косвенного нагрева (100-150 литров). Этого объема достаточно для бытовых нужд небольшой семьи (душ, мытье посуды).
- Система отопления: Радиаторы и теплые полы. Радиаторы обеспечивают быстрый нагрев помещения, а теплые полы создают комфортную температуру и равномерное распределение тепла.
- Дополнительные постройки: Учитываются хозпостройки, но скорее всего, их отопление будет минимальным или отсутствовать.
- Ключевые особенности: Простота, компактность, экономичность. Важно правильно подобрать мощность котла, чтобы он покрывал теплопотери дома.
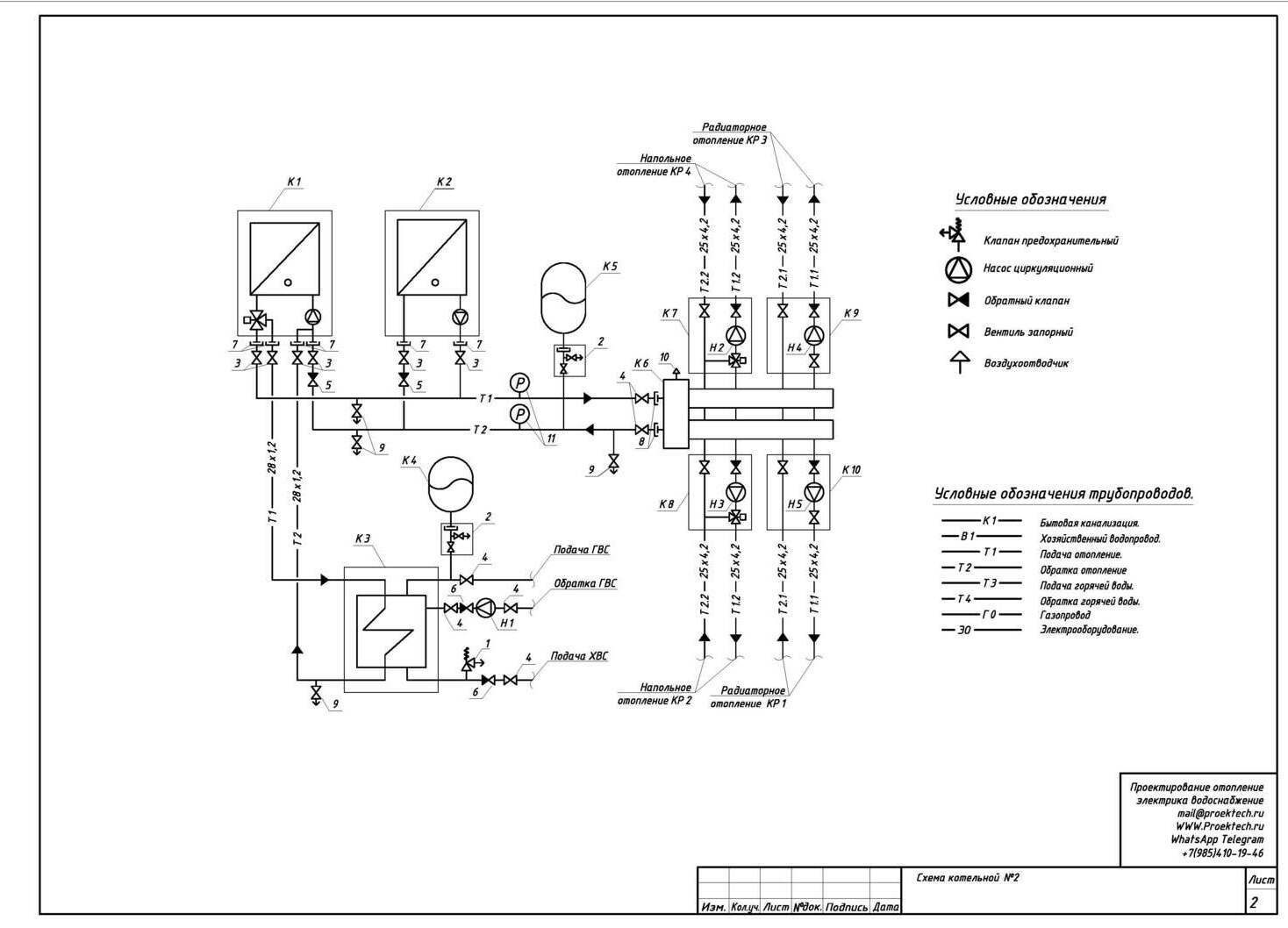
Схема котельной № 2
Дома постоянного проживания (200-350 м²).

Здесь уже требуется более надежная и гибкая система, рассчитанная на круглогодичное использование.
- Источник тепла: Настенный газовый котел с резервным электрическим котлом. Газ – основной источник, а электричество – подстраховка на случай проблем с газоснабжением или для поддержания минимальной температуры в период отсутствия.
- Нагрев воды: Бойлер косвенного нагрева (200-300 литров). Больший объем для обеспечения горячей водой семьи из нескольких человек.
- Система отопления: Радиаторы и теплые полы. С зонированием для более эффективного управления температурой в разных частях дома.
- Дополнительные контуры: Контур для бани или гаража. Это отдельный контур отопления, позволяющий поддерживать комфортную температуру в этих помещениях по необходимости.
- Ключевые особенности: Надежность, гибкость, возможность работы с несколькими контурами отопления.
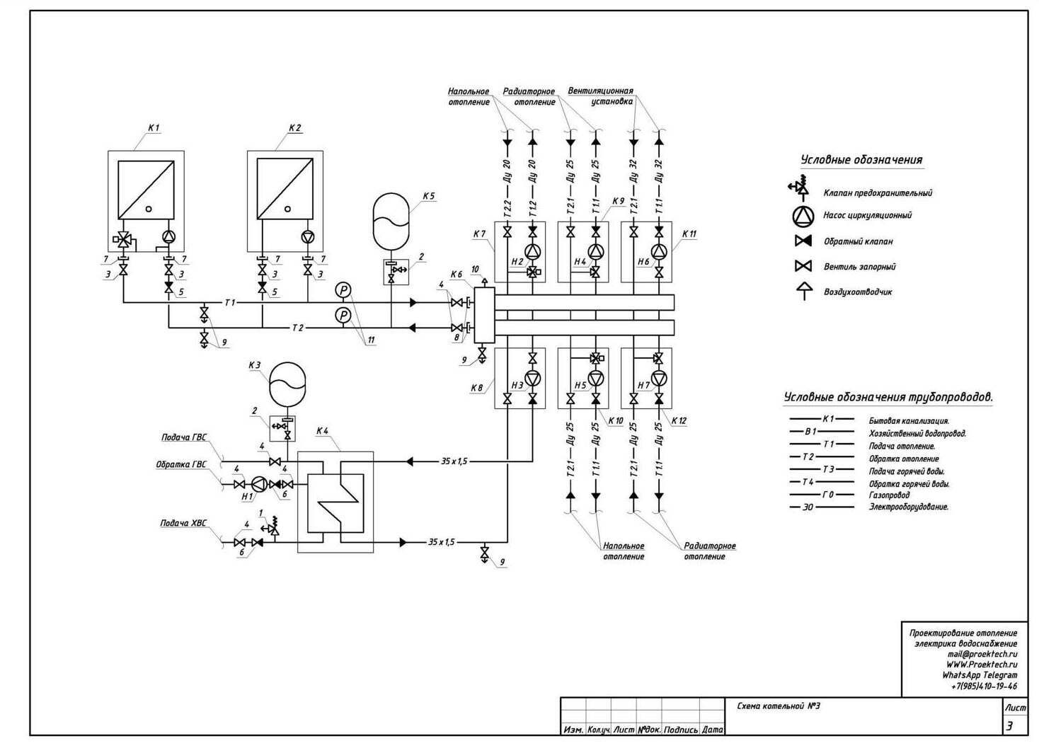
Схема котельной № 3
Большие дома (350-700 м²).

Эта схема предназначена для больших домов с повышенными потребностями в тепле и горячей воде.
- Источник тепла: Два настенных газовых котла в каскаде. Каскадное подключение позволяет более эффективно использовать котлы, подстраиваясь под текущую потребность в тепле.
- Нагрев воды: Бойлер косвенного нагрева (500 литров). Этого объема достаточно для нескольких ванных комнат и других точек водоразбора.
- Дополнительные нагрузки: Система вентиляции, бассейн, системы снеготаяния и хозпостройки. Каждая из этих систем требует отдельного контура отопления и точного расчета тепловой мощности.
- Ключевые особенности: Высокая мощность, сложная система управления, интеграция с инженерными системами дома.
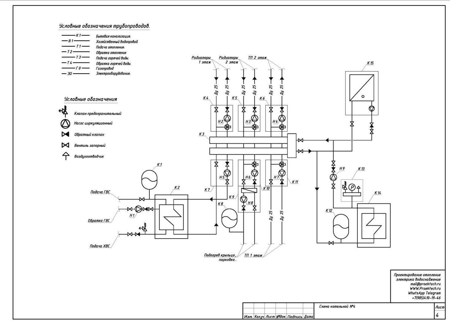
Схема котельной № 4
Альтернативный вариант для больших домов.

Вариант, похожий на схему №3, но с другим типом котла.
- Источник тепла: Напольный газовый котел с резервным настенным электрическим котлом. Напольные котлы обычно более мощные и долговечные, но требуют больше места.
- Остальное: Аналогично схеме №3.
- Ключевые особенности: Высокая надежность, возможность использования более мощного газового котла. Подключение системы снеготаяния и обогрева дорожек.
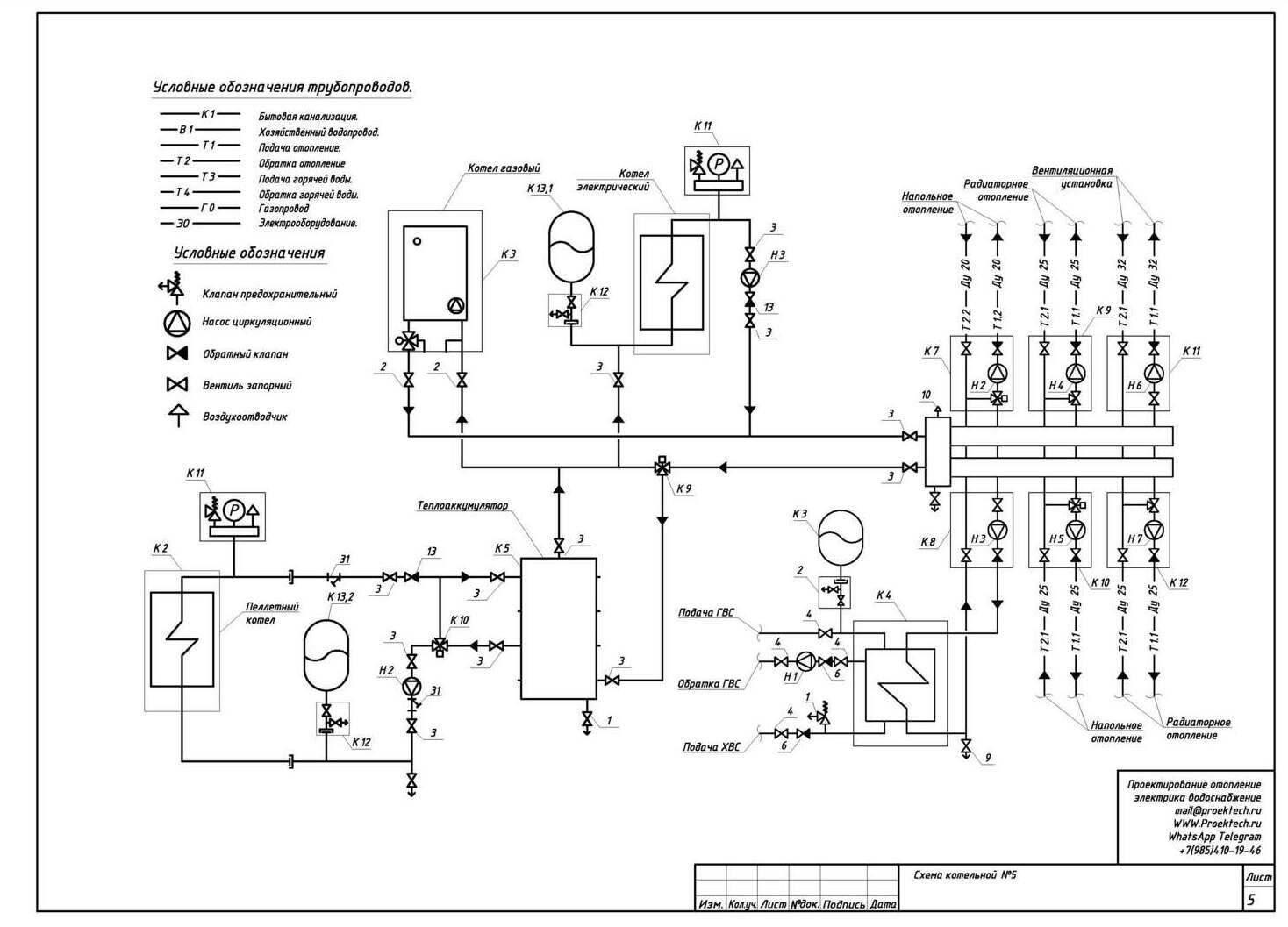
Схема котельной № 5
Универсальная схема с котлами на различных видах топлива.

Эта схема для тех, кто хочет иметь возможность использовать разные виды топлива.
- Источник тепла: Твердотопливный (автоматический или полуавтоматический), настенный газовый (сжиженный газ) и электрический котел. Это позволяет выбирать наиболее экономичный или доступный вид топлива в зависимости от ситуации.
- Особенности: Требуется место для хранения твердого топлива. Важно правильно настроить автоматику для переключения между котлами.
- Ключевые особенности: Универсальность, возможность экономии на топливе.
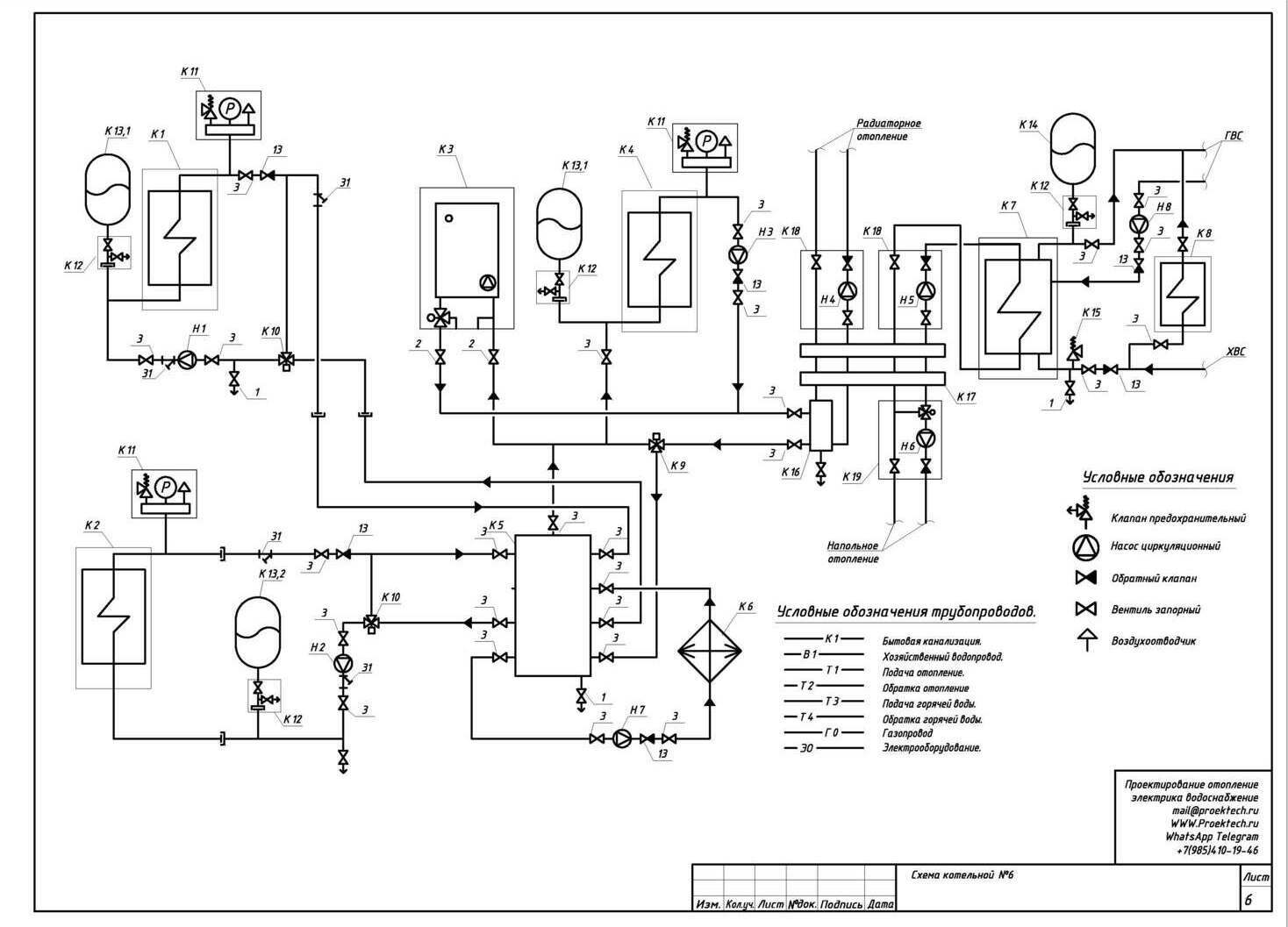
Схема котельной № 6
Тепловая мультигенераторная установка.

Самая сложная и гибкая схема, использующая различные источники тепла.
- Источник тепла: Твердотопливные котлы, тепловые насосы, газовые, электрические котлы, гелиосистемы. Комбинация этих источников позволяет максимально использовать возобновляемые источники энергии и снизить затраты на отопление.
- Особенности: Требует сложной системы управления и интеграции.
- Ключевые особенности: Экологичность, экономичность, высокая гибкость.
Заказать проектирование
- +7 985 410-19-46
- proekt1946@yandex.ru
- Прием заявок и консультации в Telegram