Проектирование инженерных систем
Проект и схема электроснабжения
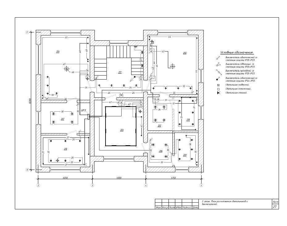
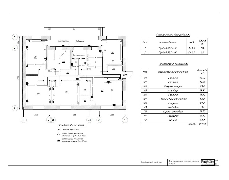
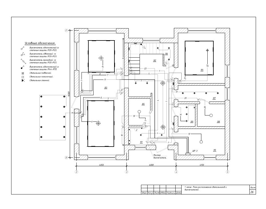
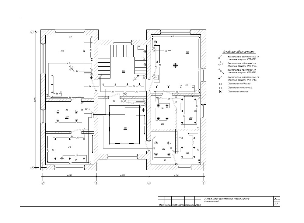
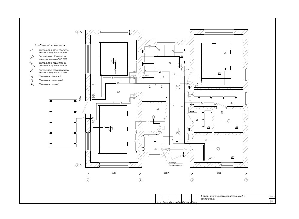
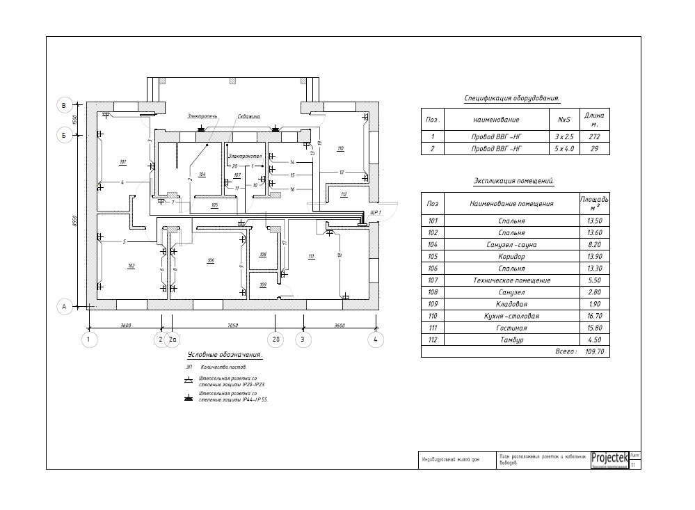
Расчет общей электрической мощности и распределение нагрузки по фазам. Монтажная схема распределительного щита. Подбор автоматических выключателей и устройств защитного отключения. Составление таблицы количества проводов их сечений и нагрузок. Размещение на архитектурных планах розеток, выключателей, электрических выводов и кабелей.
Скачать проект электроснабжения
Проектирование инженерных систем

















