Проект системы отопления
Проект отопления 393 кв. м.

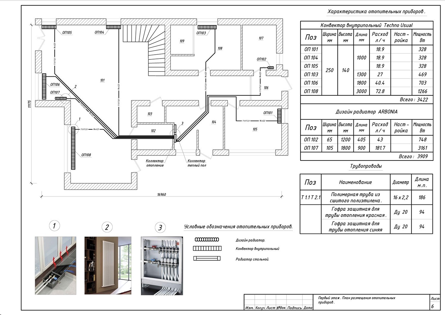
Применение в проекте трубчатых секционных радиаторов и внутрипольных конвекторов с естественной конвекцией обусловлен стремлением к оптимальному сочетанию эффективности отопления и эстетической привлекательности. Трубчатые радиаторы обеспечивают равномерный прогрев помещения за счет большой площади теплоотдачи, а их вертикальное исполнение позволяет экономить пространство и гармонично вписываться в современный интерьер. Внутрипольные конвекторы, в свою очередь, создают комфортный тепловой барьер у окон и витражей, предотвращая образование конденсата и сквозняков.
Проект отопления 105 кв. м.

Для обеспечения эффективной и экономичной работы системы отопления необходимо уделить внимание выбору оптимального типа котла. Конденсационные котлы являются одним из наиболее эффективных решений, так как они используют тепло отходящих газов, что позволяет значительно снизить потребление топлива. Также стоит рассмотреть возможность использования в проекте альтернативных источников энергии, таких как солнечные коллекторы или тепловые насосы, для дополнительного снижения затрат на отопление.
Проект отопления 208 кв. м.

При проектировании системы отопления для дома такой площади важно учитывать теплопотери через ограждающие конструкции, вентиляцию и инфильтрацию воздуха. Для этого проводится теплотехнический расчет, на основании которого подбирается необходимое количество и мощность радиаторов и конвекторов в каждом помещении. Также в проекте необходимо предусмотреть автоматическую систему управления отоплением, которая позволит поддерживать заданную температуру в помещениях и экономить энергию.
Проект отопления 161 кв. м.

Коллекторно-лучевая схема разводки из сшитого полиэтилена РЕ-Ха EVON — современное и надежное решение. Она позволяет независимо регулировать температуру каждого отопительного прибора, обеспечивая гибкость и энергоэффективность системы. РЕ-Ха обладает высокой прочностью, устойчивостью к высоким температурам и давлению, а также долговечностью.
Проект отопления 232 кв. м.

Для проекта отопления такой площади потребуется тщательно рассчитать мощность оборудования, учитывая теплопотери через стены, окна и кровлю. Важно правильно подобрать котел, расширительный бак, циркуляционные насосы и другие компоненты системы. Рекомендуется использовать автоматизированную систему управления отоплением, которая позволит поддерживать оптимальную температуру в каждой комнате и снижать затраты на энергоносители.
Проект отопления 141 кв. м.

При монтаже системы отопления необходимо строго соблюдать все строительные нормы и правила, а также рекомендации производителей оборудования. Важно обеспечить правильную установку и подключение всех компонентов системы, а также провести гидравлические испытания для выявления возможных утечек. Для выполнения такого проекта рекомендуется привлекать квалифицированных специалистов, имеющих опыт работы с современным отопительным оборудованием.
Комплект чертежей проекта отопления
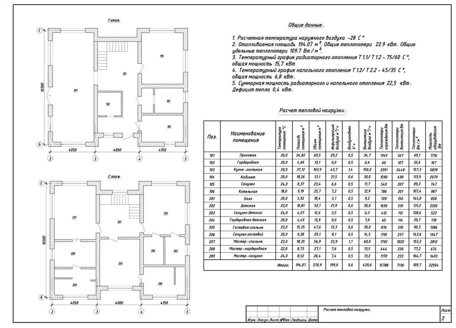
Расчет теплопотерь помещений

Расчет теплопотерь – это фундамент для проектирования эффективной системы отопления и подбора оборудования котельной. Точность этого этапа напрямую влияет на комфорт в помещениях и экономичность всей системы. Процесс включает в себя анализ тепловых потерь через ограждающие конструкции: стены, окна, кровлю, пол, а также учет вентиляционных потерь и инфильтрации воздуха.
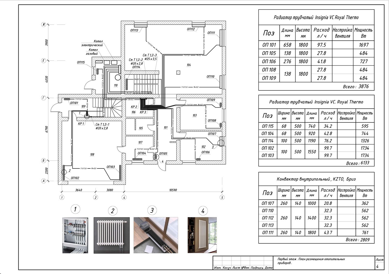
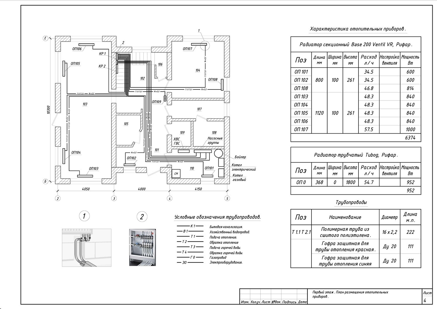
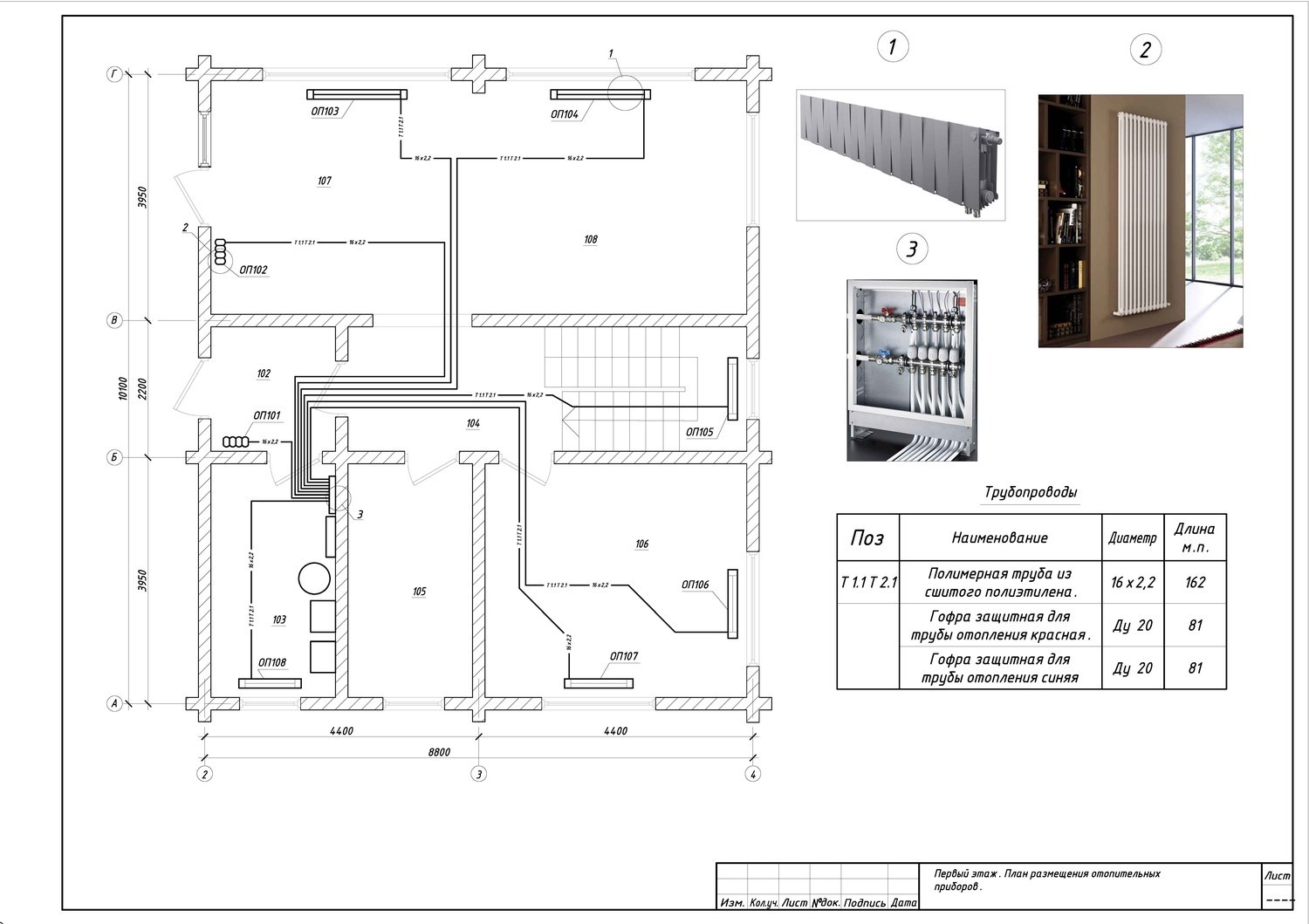
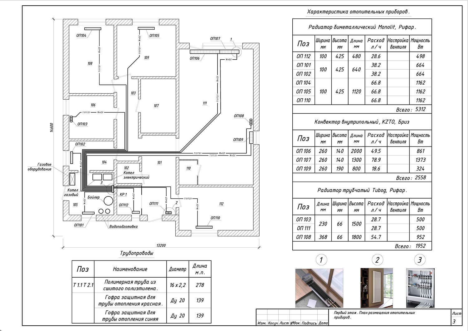
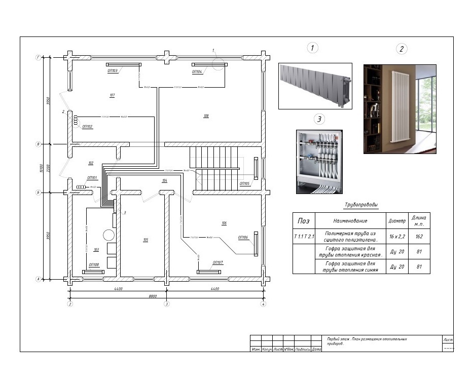
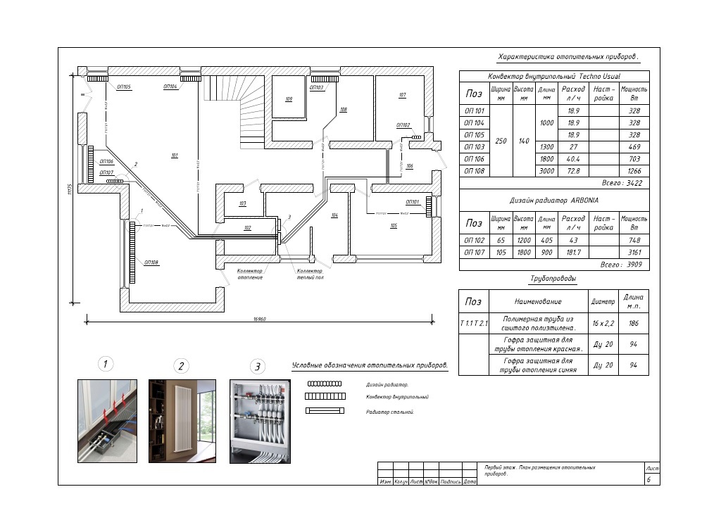
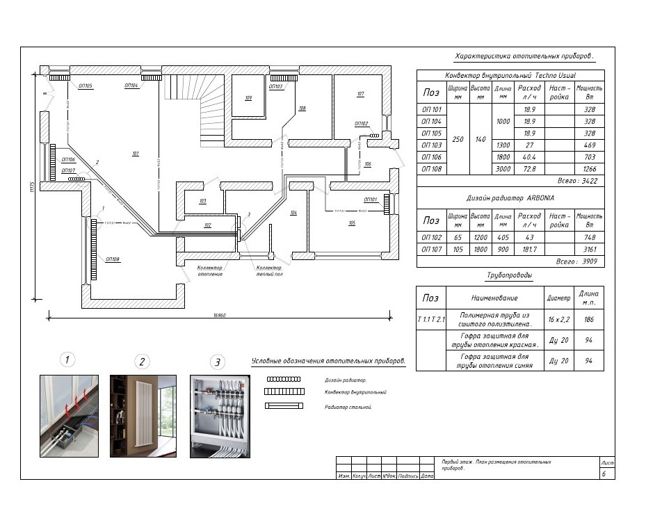
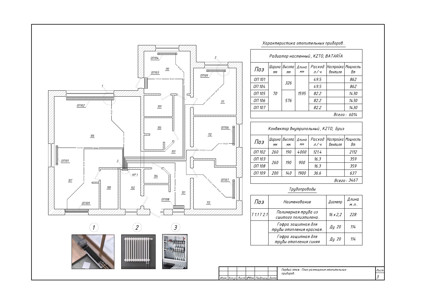
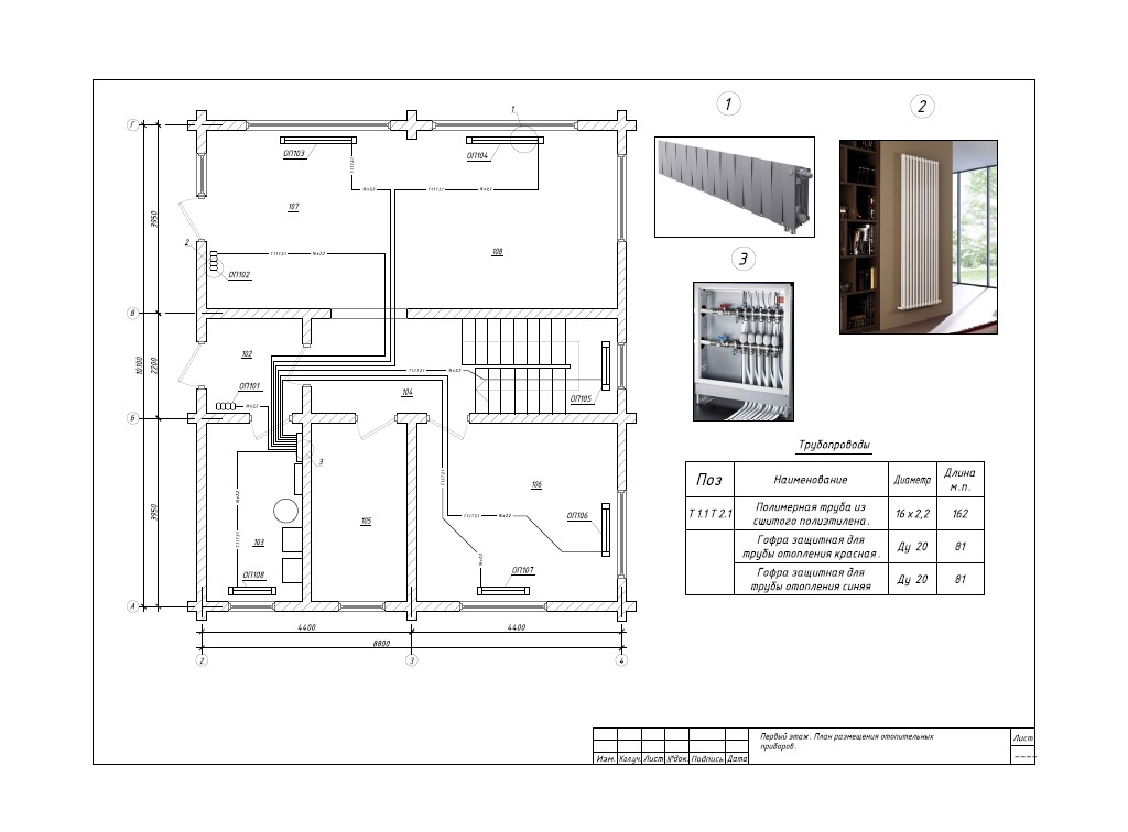
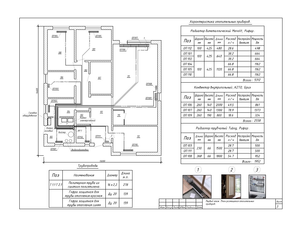
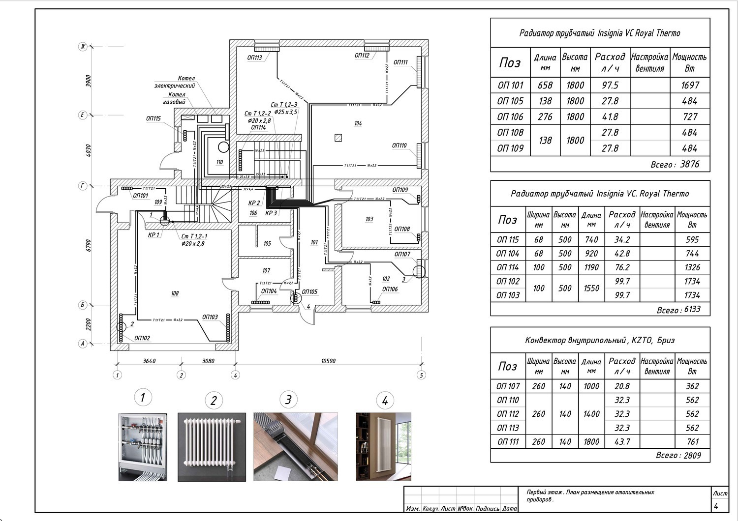
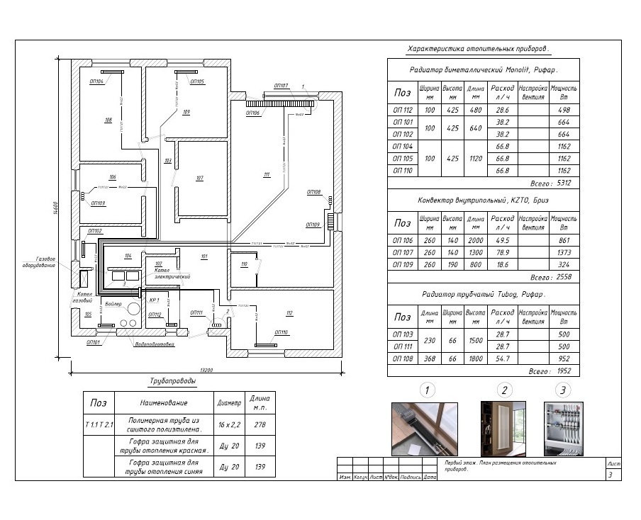
План отопительных приборов

Разработка эффективной системы отопления – это искусство баланса между комфортом, энергоэффективностью и эстетикой. Правильное размещение радиаторов и внутрипольных конвекторов имеет решающее значение для равномерного распределения тепла в помещении. При проектировании учитываются теплопотери через окна, стены и пол, а также ориентация здания и особенности климата.
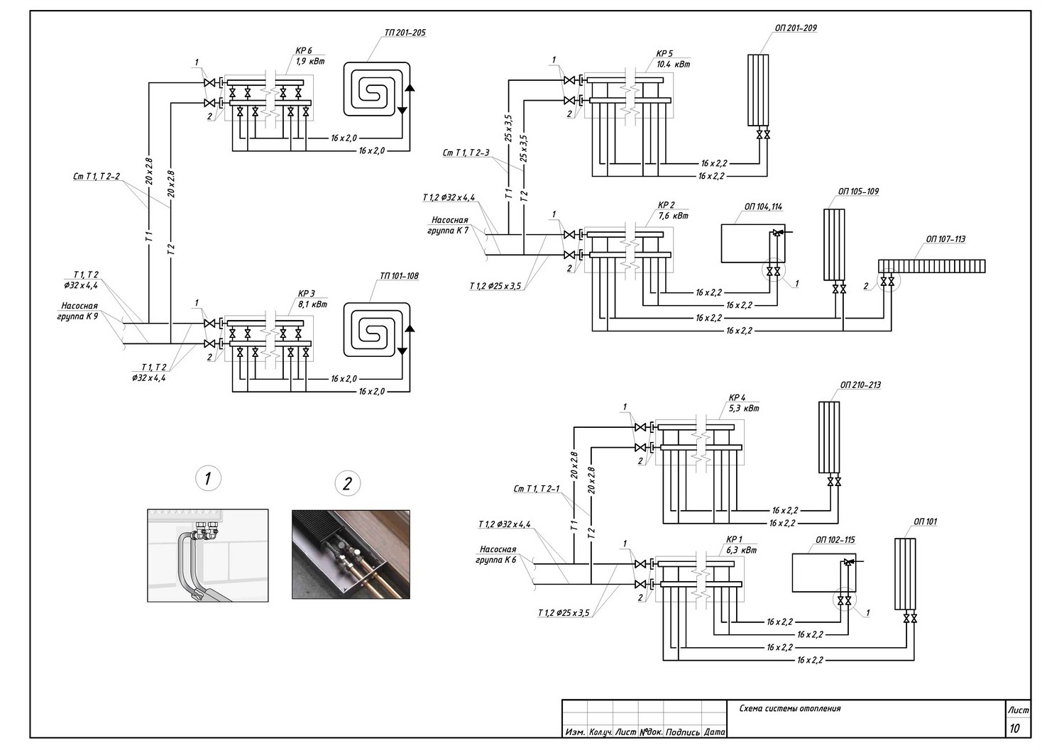
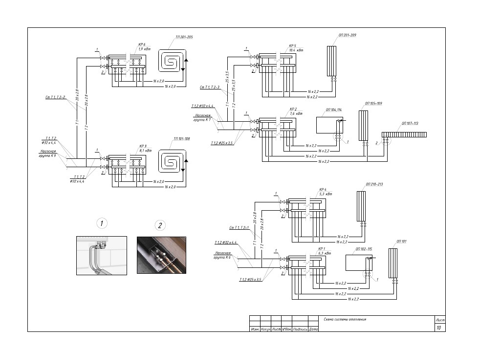
Схема системы отопления

Позиционное обозначение арматуры и фитингов в проекте должно быть четким и однозначным, позволяя легко идентифицировать каждый элемент при монтаже и обслуживании. Используются условные обозначения, соответствующие стандартам, а каждому элементу присваивается уникальный номер или код. Это упрощает процесс составления спецификации проекта и заказа необходимого оборудования.
Спецификация оборудования

В спецификации проекта отопления необходимо учитывать тип радиатора (секционный, панельный, трубчатый) или конвектора (напольный, настенный, встраиваемый), материал изготовления (алюминий, сталь, чугун), рабочее давление и температуру теплоносителя. Также важно оценить эстетические параметры, габариты и особенности монтажа.
Скачать пример проекта отопления
Заказать проектирование
- +7 985 410-19-46
- proekt1946@yandex.ru
- Прием заявок и консультации в Telegram






